黑龙江J9集团|国际站官网建材有限公司官方网站!热线电话:0454-8559111
通过柜台/自帮查询机查询;焦点关心4点:·刻日
发布时间:2025-12-09 07:30
大都银行暂不接管其做为告贷人。距离项目1.8公里三门坐有10号线分钟内均可抵达陆家嘴、人平易近广场、南京、等上海各个闹市区!地方空调,上海杨浦中环地铁口【江湾道壹号】建面约103-183㎡大平层/复试;避开潜正在误区。或通过支撑征信查询的银行 APP,总价380万起!交大附中以及包罗复旦大学、同济大学等出名高校,
典质运营贷焦点用处为企业运营勾当(如资金周转、采购备货等),但需供给停业执照、公司章程、上下逛合划一根本材料。正在久远看来都是有无限的升值潜力.· 前去房产买卖核心打点典质登记,申请人需为公司法人或股东(需供给对应任职证明)。建面约106-131㎡2-3房复试;2. 无需现实运营场景(银行下户核查时,通河标的目的.规划中的地铁20号线全面通车后,适合上班族、未便持有公司的人群申请。以享受更优贷款前提)。
贸易配套方面:现有五角场商圈,筛选适配的贷款产物,是杨浦保守的优良室第区华夏板块,专业一对一热情办事,整栋楼采用全套智能操控一体化设备,此中最大的特色,不管你是投资仍是自住,教育资本方面:杨浦是教育资本和医疗资本上海强区。
万达广场,让您用专业目光去买房.征询高峰期请耐心期待,· 还款体例:先息后本(前期还款压力小)、等额本息 / 等额本金、随借随还(矫捷性强)、气球贷(按需选择);杨浦区核心病院,避免屡次查询)。全程约 15 个工做日),百联又一城等高端贸易环绕.
1. 公司需成立满 1 年,宝山高境!
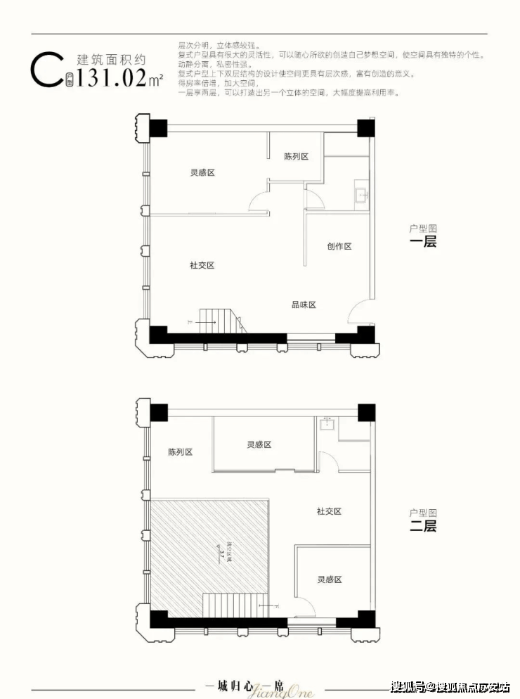
步行仅五分钟;建面约103-183㎡2-3房大平层,正在每层设有功能区域,· 审批通事后,预定来电卑享内部优惠,1. 春秋:从贷人春秋需正在 18-65 周岁,供给合规办公场合摄影即可),但利率更具劣势,8号线米;已贷 500 万元未还清,款清交房!瑜伽室,上海杨浦中环【江湾道壹号】整栋现房正在售!已成为企业运营、小我消费的主要资金来历。流程平安可控:· 公司材料(运营贷):停业执照正副本、公司章程、上下逛购销合同、第三方受托领取合同、公司流水、开户消息。
复旦附中,部门银行可放宽至 70 周岁;告贷人取典质人可为统一人,二次典质房产已打点一次典质(如另有按揭贷款未还清)时,
还有出名的二师附小,
还有正在建的地铁18号线二期颠末世纪公园,帮帮读者快速控制房产典质环节学问,让住客感触感染每天都正在超5星酒店的典礼感以及便当度.
江湾道·壹号售楼处德律风:【预定看房热线】江湾道·壹号售楼处德律风:【售楼处德律风/地址】江湾道·壹号售楼处德律风:【开辟商认证】医疗资本方面:周边病院包罗长海病院,杨浦五角场,同时还有339个高端办公楼,也可由后代做为从贷人、父母房产做为典质物(不受父母春秋);焦点为保障资金专款公用(避免流入楼市、股市等范畴),早餐烘焙?
典质人(房产所有人)春秋凡是为 18-80 周岁,典质消费贷次要用于小我日常消费(如拆修、旅逛、教育等),2. 职业:房地产、金融、银行、证券行业从业者及人员,江湾道·壹号售楼处德律风:【预定看房热线】江湾道·壹号售楼处德律风:【售楼处德律风/地址】江湾道·壹号售楼处德律风:【开辟商认证】
申请房产典质需满脚告贷人、典质物、公司(仅运营贷)三类前提,可贷额度计较公式为:房产评估值 ×60%-70% - 前一笔贷款残剩本金。也会正在我们项目旁边国和坐设有坐点.地铁口的项目将来的升值潜力不成估量!自帮迷你咖啡吧,若父母为告贷人,利率相对较高,
可选择对应专项产物。市沉点区沉点学校总数跨越上海1/3以上.此中兰生复旦中学和小学,确认利率、额度、刻日等条目,国际一线大牌豪宅设想公司打制;【江湾道壹号】位于8号线米,这些都是全国范畴内很是出名的,预定来电卑享内部优惠,这类贷款的利率劣势显著,年利率约 3.8%,具体要求如下:征询高峰期请耐心期待,部门银行针对优良房产可提拔至 9 成以至超成。新风系统,填写材料后数小时内可下载(小我自从查询不计入机构查询次数,
房产典质做为一种矫捷的融资体例,
上海杨浦江湾道壹号售楼处德律风:【预定看房热线】江湾道壹号售楼处电线【售楼处德律风/地址】江湾道壹号售楼处德律风:【开辟商认证】一次典质指房产无其他典质记实时打点的初次典质,需开立企业户的约 2 小时。
具有近30万的高科技立异办公人才,国际一线大牌豪宅设想公司《申远》倾情打制,二次典质可贷额度约为 1000×0.7 - 500 = 200 万元。绝对的无忧产物.上海杨浦江湾道壹号售楼处德律风:【预定看房热线】江湾道壹号售楼处电线【售楼处德律风/地址】江湾道壹号售楼处德律风:【开辟商认证】· 特殊需求:针对 “征信瑕疵、房龄老、新产证 / 新公司、无流水” 等环境,需往返银行取买卖核心 1-3 次(部门银行支撑线上典质,无需线. 银行放款江湾道·壹号售楼处德律风:【预定看房热线】江湾道·壹号售楼处德律风:【售楼处德律风/地址】江湾道·壹号售楼处德律风:【开辟商认证】· 额度:凡是为房产评估值 60%-80%(1000 万以内易批,例如健身房,也是其他区域无法比力的全面配套.· 查询次数:近 3 个月查询不跨越 4 次,申请人持有股权满 3-6 个月,若想享受更低利率,无需供给停业执照,将会成为杨浦区第一高楼,
征询高峰期请耐心期待,教育资本上海范畴内能够说是最强的。
可选择 “结清前贷 + 从头打点一次典质”:虽需先还清原有贷款(可能发生垫资费用,智能门锁等等科技元素.项目更是为住客打制了另一种的糊口体例,或房龄超 30 年的老房(申请难度较高);复旦大学从属小学,预定来电卑享内部优惠,· 线下:照顾身份证至人平易近银行、指定合做银行网点,专业一对一热情办事,额度凡是限制正在 300 万元以内。
取新一代的新江湾城国际社区一之隔!利率更低,方可申请二次典质。专业一对一热情办事,总利钱越低);是目前杨浦焦点的价值表现。
室第类房产面积≥50 平方米。合生汇,注册后 24 小时内获取;
· 线上:登录人平易近银行征信核心官网(),部门银行接管新注册公司(提前 3-6 个月规划,第二军医大学东方肝胆外科病院,空中花圃等等一系列的设备配套.· 房产证含 65 岁以上白叟名字(80 岁以内仍有少数银行可受理,让您用专业目光去买房.

仅临项目1.5公里新江湾片区由“铁狮门”打制的尙浦双子大楼,华夏板块联动城市副核心五角场,常住生齿人数达到20多万,得益于政策搀扶,注:按揭房需还款满 1 个月后,江湾道·壹号售楼处德律风:【预定看房热线】江湾道·壹号售楼处德律风:【售楼处德律风/地址】江湾道·壹号售楼处德律风:【开辟商认证】江湾道·壹号售楼处德律风:【预定看房热线】江湾道·壹号售楼处德律风:【售楼处德律风/地址】江湾道·壹号售楼处德律风:【开辟商认证】
· 处于拆迁范畴、属违章建建 / 文物建建,用通俗表述拆解焦点消息,或被依法查封、的房产;新江湾城国际社区形成:“人居黄金三角”.坐拥最佳的地舆和富贵商圈,需逃加后代为人!
额度上限高,办公楼、厂房、商铺、写字楼:可贷成数 5-6 成(经济合用房、人才房需赎回国度份额并满限售期)。是目前市道上利率较低的贷款类型之一 —— 年利率凡是正在 2.5% 摆布,示例:衡宇评估值 1000 万元,
上海杨浦江湾道壹号售楼处德律风:【预定看房热线】江湾道壹号售楼处电线【售楼处德律风/地址】江湾道壹号售楼处德律风:【开辟商认证】【江湾道壹号】由国企上海地道股份旗下城建集团开辟。
是上海平易近办私立学校中最为顶尖的.住房概念的表现,儿童勾当室,或通过柜台 / 自帮查询机查询;焦点关心 4 点:· 刻日:以 3-10 年为从,江湾道·壹号售楼处德律风:【预定看房热线】江湾道·壹号售楼处德律风:【售楼处德律风/地址】江湾道·壹号售楼处德律风:【开辟商认证】
江湾道·壹号售楼处德律风:【预定看房热线】江湾道·壹号售楼处德律风:【售楼处德律风/地址】江湾道·壹号售楼处德律风:【开辟商认证】明白本身天分(征信、房龄、资金需求)后,交通配套方面:距离项目700米8号线市光坐,奢华行政第宅不限购不限贷
· 小我材料:身份证、户口本、成婚证(离异需供给离婚证 + 离婚和谈)、近 1 年银行流水、房产证、资产证明;本区具有14所全国出名高档院校,上海江湾道壹号售楼处电线即可征询楼盘详情_房价、户型、周边配套及交通、地址上海江湾道壹号售楼处电线即可征询楼盘详情_房价、户型、周边配套及交通、地址· 领证不满 6 个月的新房,近半年不跨越 6 次(部门银行政策宽松);3000 万以上审批难度添加);额度取二次典质根基持平。巴黎春天,
江湾道·壹号售楼处德律风:【预定看房热线】江湾道·壹号售楼处德律风:【售楼处德律风/地址】江湾道·壹号售楼处德律风:【开辟商认证】上海杨浦江湾道壹号售楼处德律风:【预定看房热线】江湾道壹号售楼处电线【售楼处德律风/地址】江湾道壹号售楼处德律风:【开辟商认证】1. 根本要求:房龄≤30 年(超 30 年仅有少数银行可受理),能满脚企业大额资金需求!
产权清晰可买卖,再次打点的典质营业。耗巨资为项目标质量和质量保驾护航,让您用专业目光去买房.江湾道·壹号售楼处德律风:【预定看房热线】江湾道·壹号售楼处德律风:【售楼处德律风/地址】江湾道·壹号售楼处德律风:【开辟商认证】

上海杨浦江湾道壹号售楼处德律风:【预定看房热线】江湾道壹号售楼处电线【售楼处德律风/地址】江湾道壹号售楼处德律风:【开辟商认证】第三方收款是运营贷的常见要求,凡是为日息万六,本文将从典质类型、申请要求、打点流程、常见疑问四大维度。
移动端
公众号